2021年08月31日公開

慶長12年、加藤清正によって誕生した名城 熊本城は市内繁華街の側に聳えます。そこに在ることが当たり前となる程に残り続け、愛される建築。それは、永く遺る住まいづくりを掲げる私たちにとって、目指すべき最たる存在のひとつでしょう。
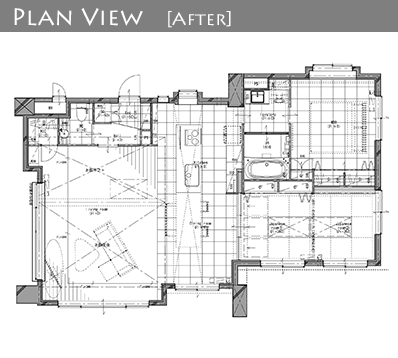
今回の設計は、そうした偉観たる熊本城の姿を真正面に捉えるマンションの一室。その景観的ポテンシャルを最大限に活かすべく、住まい全体を再構成しました。
南北に空間を抜き、視線を通す。風が部屋をなぞり、ゆったりと流れていく時を肌で感じさせます。また愛着のある什器類を引き続き使用されるとのことでしたので、自然素材の経年進化・味わいを活かし、落ち着きある上質な雰囲気で仕上げました。表面的な改修だけでなく、断熱や調湿といった性能に優れた素材を厳選し、永く遺るための器づくりに努めています。
お施主様のご趣味は晩酌。始まりは和室から、次はダイニングテーブルへ移動、最後はリビングにてほろりと庭木越しの熊本城を眺めます。家の中で嗜む飲み歩き。ご友人とお食事をとることが多いご家族にとって、この上なく充実した人生を感じる瞬間です。
2016年に熊本地震により甚大な被害を受けた熊本城は、今もゆっくりと、着実に、復興を重ねています。災害にも負けず、いつの時代も人々に愛されるその存在。ここからその姿を見るたびに、これからもものづくりを続けていく者としての使命を感じます。
この物件は、約20年前、お施主様が新築時に購入されたマンションです。
元の間取りは3LDK。個室となった子供部屋、寝室、和室、LDKを廊下が繋ぐ構成。
家族構成の変化から、使わない空間ができてしまいもったいないと感じていたところをご相談いただきました。
元々使用されていた家具類も素敵なモノばかりで、またとても大切に使われていました。
巣立たれたご家族も含め長い時間を過ごされた場所でもあり、これまでも、これからも、ずっと愛される住まいとはどうあるべきなのか。私たちなりの問いを持ち、向き合わせていただきました。



| 物件名称 | : | 熊本城をのぞむ望楼の住まい。 清正に倣う、永く愛される建築の教え。 |
|---|---|---|
| 所 在 | : | 熊本県熊本市 |
| 築 年 月 | : | 1998年12月 |
| 構 造 | : | RC造 |
| 間 取 り | : | 2LDK |
| リノベーション面積 | : | 97.50m2 |
| 施工期間 | : | 4ヶ月 |
| 費 用 | : | 2,000万円(税込) |
| 「リノベーション・オブ・ザ・イヤー2020」借景空間リノベーション賞受賞作品(株式会社ヤマダホームズ) | ||